Winter Interest Garden

Project Information

Project Overview:

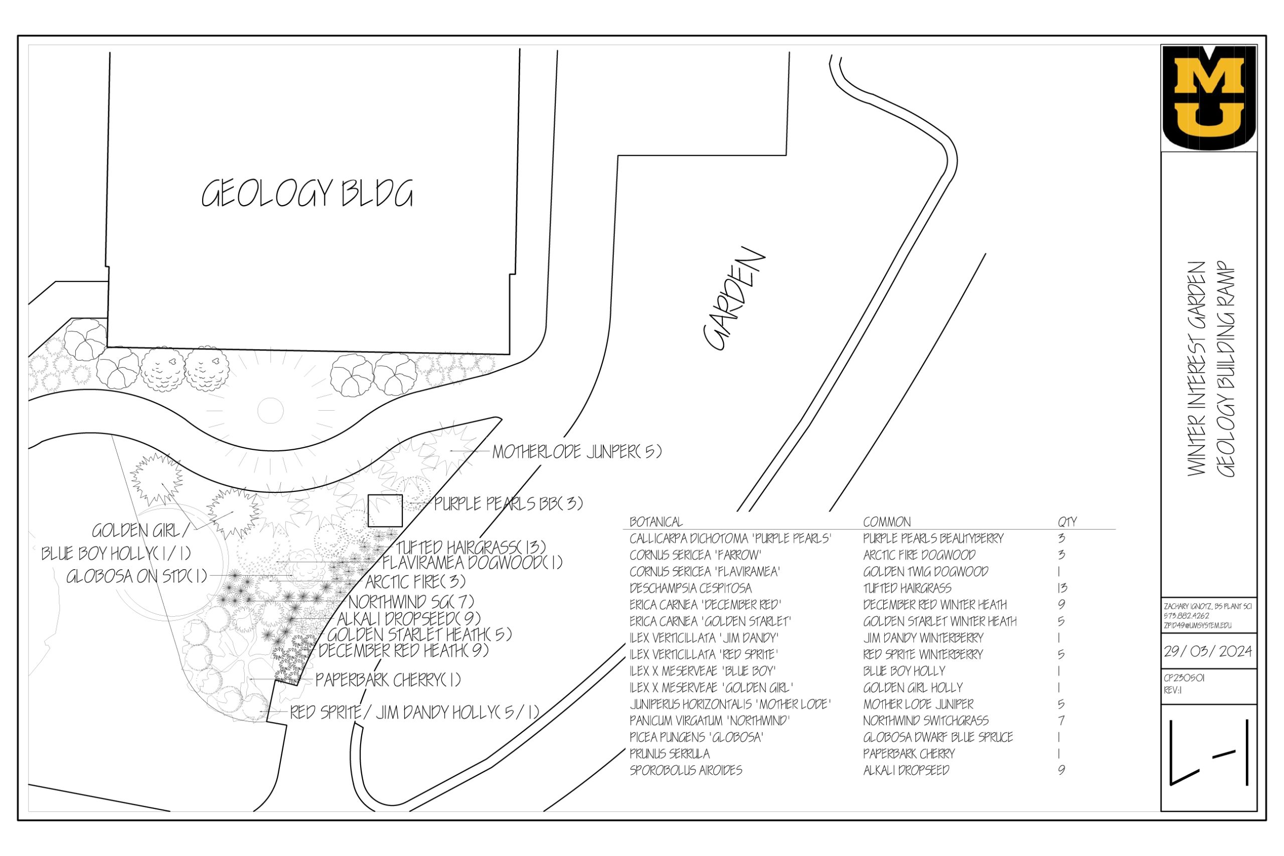
A new Handicap ramp and sidewalk improvements made provided an opportunity for new landscaping.  A concept of a garden that showcased winter interest plants was designed and caught the attention of a donor who decided to fully endow the garden one of three new endowed gardens in over 12 years.

Location:

Next to Switzler Hall and the Geology Building

Project Timeline:

  • Est. completion: Fall 2025

Closures & Maps:

View the Construction Impact Map

Project Photos:

Winter Interest Garden Outline